NEUBAU: 2-Zimmerwohnung direkt am Rheindelta in Fußach zu vermieten
Fußach
Willkommen in Ihrem neuen Zuhause in Fußach, einer erstklassigen Etagenwohnung zur Miete. Dieses exklusive Neubauprojekt, erbaut im Jahr 2025, bietet Ihnen modernsten Wohnkomfort und steht ab dem 15. Januar 2026 zum Erstbezug bereit.
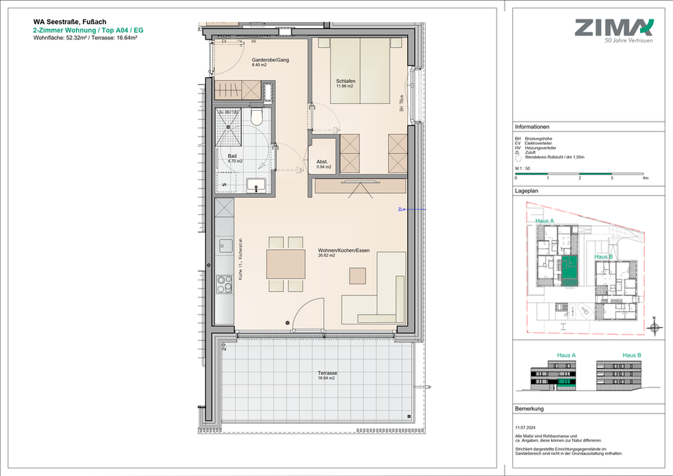
Auf einer großzügigen Wohnfläche von 52 m² verteilen sich zwei helle Zimmer, ideal geschnitten für ein gemütliches Zuhause. Das Herzstück der Wohnung ist die offene Einbauküche, die nahtlos in den Wohnbereich übergeht und mit hochwertigen Fliesenböden ausgestattet ist.
Der lichtdurchflutete Wohnbereich führt Sie direkt auf die sonnige Südterrasse, die zum Entspannen und Genießen einlädt. Ob Sie ein intimes Abendessen im Freien planen oder einfach die Ruhe und Aussicht in Ihrem neuen Zuhause genießen möchten – dieser Außenbereich bietet Ihnen vielfältige Möglichkeiten.
Das Schlafzimmer verspricht erholsame Nächte und Komfort, während das moderne Badezimmer mit erstklassiger Ausstattung jeden Morgen zu einem kleinen Wohlfühlmoment macht. Ein weiteres Highlight der Wohnung ist der eigene Kellerraum, der für zusätzlichen Stauraum sorgt.
In dieser exzellenten Lage in Fußach genießen Sie sowohl die Ruhe als auch die Nähe zu allen wichtigen Annehmlichkeiten und Verkehrsanbindungen. Diese Wohnung ist ein perfekter Rückzugsort für all jene, die hochwertigen Wohnkomfort zu schätzen wissen. Erleben Sie Wohnen in seiner schönsten Form – vereinbaren Sie noch heute einen Besichtigungstermin!
Miete Wohnung:
Nettomietzins: € 800,91
zzgl. 10% MwSt.: € 80,09
Bruttomietzins: € 881,00
Miete Garage:
Nettomietzins: € 70,00
zzgl. 20% MwSt.: € 14,00
Bruttomietzins: € 84,00
ca. Betriebskosten: € 185,00
Mietzins inkl. BK: € 1.150,00
BESICHTIGUNG: nur gegen Terminvereinbarung über unser Büro
Kaution:
3 Bruttomonatsmieten inkl. BK € 3.460,00 (Bankgarantie oder Sparbuch)
Die Angaben beruhen auf Informationen des Vermieters.
Ausdrücklich weisen wir darauf hin, dass mit dem Auftraggeber ein wirtschaftliches Naheverhältnis besteht!
















